RELATED PROJECTS
Synopsys West Development
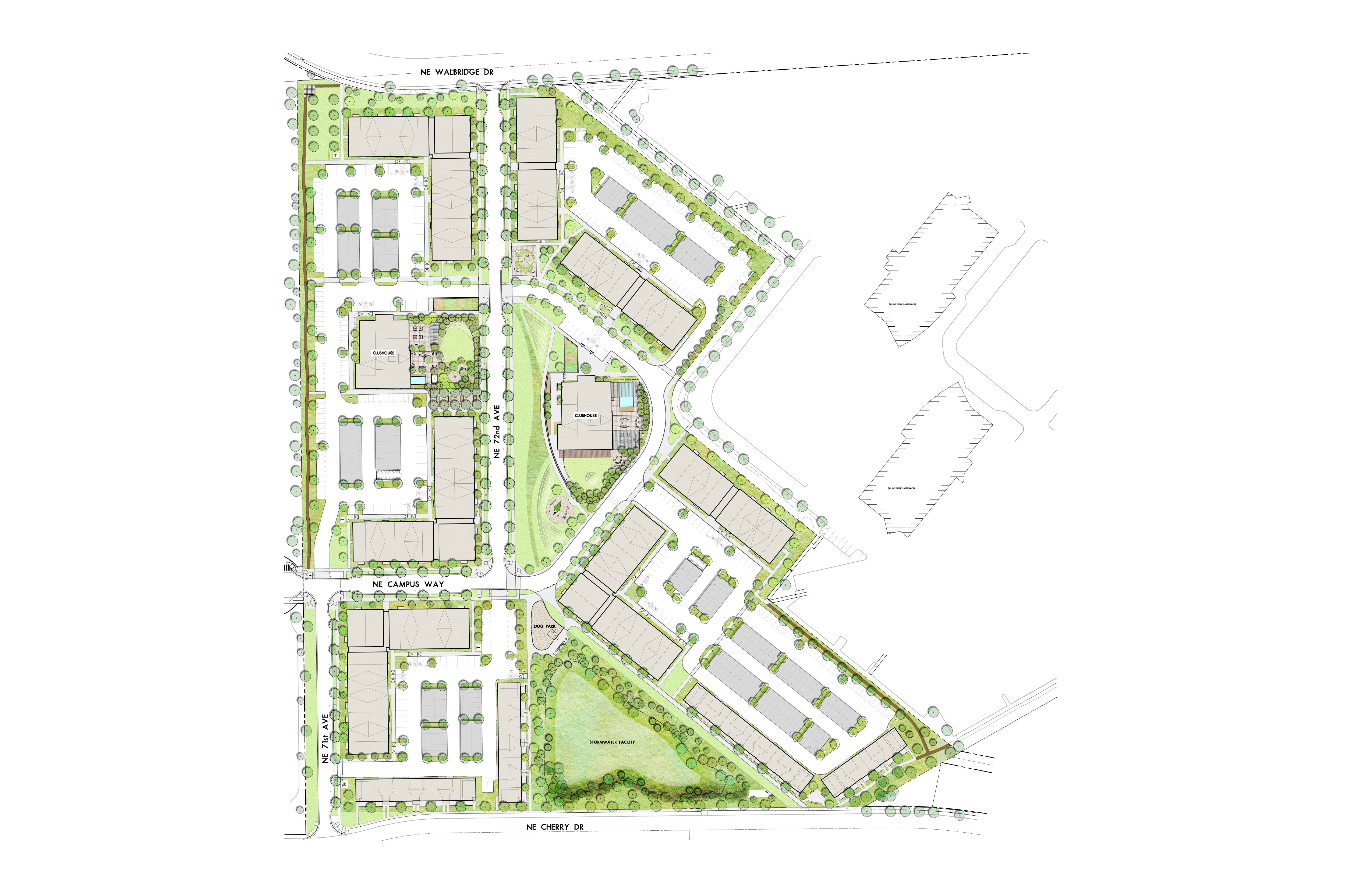
Hillsboro, ORThis 17.6-acre Planned Unit Development in Hillsboro’s Station Community Planning Area introduces a vibrant, transit-oriented residential neighborhood. The project includes seven four-story multifamily buildings and sixteen two-story townhomes, for a total of 586 homes ranging from studios to three-bedrooms.
The community is designed around walkability, open space, and everyday convenience. Landscaped courtyards, natural areas, play zones, BBQ and seating areas, dog runs, and two amenity-rich clubhouses create a connected, park-like environment. Residents will enjoy fitness centers, co-working spaces, lounges, sport simulators, family rooms, trails, patios, and pools. With nearly 200,000 square feet of usable open space—far surpassing City requirements—the site offers generous outdoor living and recreation.
Improved circulation will extend NE Campus Way, NE 71st Avenue, and NE 72nd Avenue through the property, linking the neighborhood to surrounding streets, regional trails, and transit. Parking includes 688 stalls with carports, ADA spaces, and EV infrastructure serving at least 40% of stalls.
All utilities will be placed underground and supported by on-site stormwater facilities, vegetated swales, and public system upgrades. Development will roll out in two major phases over approximately five years, delivering streets, utilities, multifamily buildings, townhomes, and two clubhouses in a coordinated sequence. Concurrent land use applications include PUD approval, Development Review, a Partition, and a Major Adjustment to support the project vision.







